
|
|
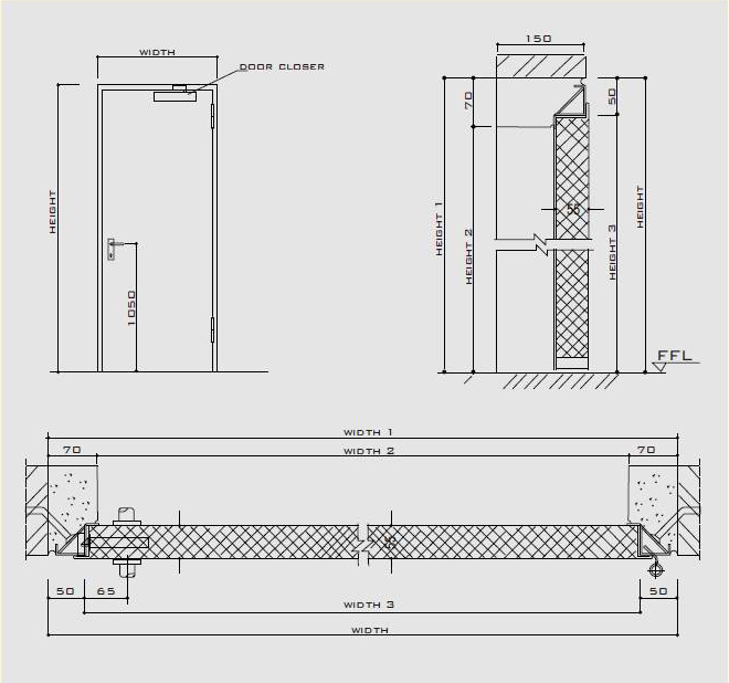
FIRE DOOR
PITON STEEL adalah pabrikasi layanan pembuatan pintu tahan api dan perlengkapannya dan pintu besi sejenisnya. |
SINGLE FIRE DOOR


Perlengkapan / Aksesoris
- Engsel
- Handle / Blackplate
- Panic Bar
- Cylinder
- Door Closer
Tambahan ( Optional )
- Kaca
DOUBLE FIRE DOOR


Perlengkapan / Aksesoris
- Engsel
- Handle / Blackplate
- Panic Bar
- Cylinder
- Door Closer
Tambahan ( Optional )
- Kaca
FIRE DOOR WITH GLASS
Pintu Penahan Api “PITON” dapat dilengkapi dengan kaca tahan api dengan beberapa konfigurasi standar dan dapat dipasang pada pintu tunggal maupun ganda.
| TYPE | FIRE RATING | GLASS OPENING SIZE |
| V | 1 1/2 Hours | 250 x 150 mm |
| S | 1 1/2 Hours | 400 x 150 mm |
| T | 3/4 Hours | 1350 x 150 mm |

